BUYER: Hank Azaria
SELLER: Dan Castellaneta and Deb Lacusta
LOCATION: Pacific Palisades, CA
PRICE: $5,500,000
SIZE: 4,415 square feet, 4 bedrooms, 3.5 bathrooms
YOUR MAMAS NOTES: Multi-talented actor/producer Hank Azaria has been on the Hollywood hamster wheel for a very long time. His scads of starring and recurring roles on both the boob-toob (Huff, Friends, Mad About You) and silver screen (Night at the Museum: Battle of the Smithsonian, The Birdcage) have earned him oodles of respect and accolades among fans and other industry denizens. He is, however, probably best known (and paid most) for the voice over work he's done since the late 1980s on the long-running animated sitcom The Simpsons. His comedic talents and long-term showbiz success have allowed him to build up an impressive portfolio of posh properties in Los Angeles and New York City.
In March 2009, with a bun in his lady-friend Katie Wright's oven, Mister Azaria splashed out a very a-list $10,000,000 for an 8,434 square foot mansion at the tail end of an exclusive cul-de-sac. Although the property hovers over the parking lot at the extremely hoity-toity Bel Air Country Club in Los Angeles, the children can be assured it sits well elevated enough to have a distant but de-lovely vista of the Pacific Ocean during the day and a sparkling view of the glittering carpet of lights of Los Angeles at night.
The actor and his baby momma hired talented and much-published decorator du jour Trip Haenisch to work over the traditional interior spaces. Mister Haenisch, for those who like their celebrity decorators cross referenced, recently re-worked the chic mid-century Malibu compound owned by Courtney Cox that recently appeared in the pages of Elle Decor.
Mister Azaria's Bel Air mansion includes 7 bedrooms 10 bathrooms, formal living and dining rooms, a barn-sized family room with a pair of sofas upholstered in teddy bear fur, a substantial home gym, screening room and an office where Mister Azaria keeps his quartet of Emmys and a poker table surrounded by Eames-designed office chairs. Magazine readers will recall that Mister Azaria's meticulously done Monterey Colonial-style mansion was just featured in the August (2011) issue of Architectural Digest and y'all know what the say about celebrity homes that appear in the gleaming pages of Arch Digest, right?
Well, dontcha know pets, a few weeks ago, just days after the August issue of A.D. landed in our mail box, Your Mama's bedazzled and bedraggled princess phone started to clang-a-langa-lang. On the other end was a chatty real estate insider pal we'll call Peter Peckerwood (of the north of Sunset Peckerwoods) who snitched that Mister Azaria was very quietly in the process of selling his big ol' Bel Air mansion and purchasing the much smaller Pacific Palisades residence of The Simpsons cast mate Dan Castellaneta (voice of Homer Simpson) and his wife Deb Lacusta who has herself penned a number of episodes of The Simpsons.
Property records for the sale of Mister Azaria's Bel Air mansion have yet to clear but, according to the usually impeccably informed Mister Peckerwood, Mister Azaria has done sold the posh property to a friend who couldn't resist making an offer that Mister Azaria could not refuse.
Mister Castellaneta and Miz Lacusta's part of this real estate tale starts in 2006 when, according to Mister Peckerwood, they went a-huntin' for the perfect contemporary house. Not having found something more modern to their liking, in December 2006 they settled on a charming 4,415 square foot mock-Tudor mini-mansion in the quietly ritzy Riviera area of Pacific Palisades. They paid, as per property records, $5,750,000 for the well-preserved pad that was, according to listing information, designed by architect Gerard Colcord and built in 1928.
A little over four years later Mister Castellaneta and Miz Lacusta stumbled across their contemporary dream house–oddly enough located just a couple short blocks from their Colcord-designed crib–and in April 2011 they coughed up $5,700,000 to purchase the 5 bedroom and 4.5 bathroom property. The following month they heaved their 4 bedroom and 3.5 crapper Colcord-designed digs on the market with a $5,750,000 price tag.
Along comes Mister Azaria and Baby Momma Katie who must have desired a real estate downsize and, according to Redfin, paid his fellow Simpsons cast mate $5,500,000 for the smaller and less glitzy but still atrociously expensive residence in the Riviera 'hood. Why did Mister Azaria opt for a new house almost half the size of this celebrity-style pad in Bel Air? We don't know, so don't anybody take the bother or breath to ask.
In addition to his new house in Pacific Palisades, Mister Azaria owns two additional homes in Los Angeles. In 1992 he paid $390,000 for a house in the Hollywood Dell neighborhood that he still owns and rents out. November 1996 he paid $285,000 for a property deep in one of the canyons that cut into the mountains behind Beverly Hills. The secluded Bev Hills hideaway (above) briefly appeared on the market last year with an asking price of $3,600,000. It was also listed for lease at $11,000 per month and online listing information Your Mama persuaded out of the interweb shows it went for $9,000 per month.
The stage-trained actor–who went to drama school and remains poker-playing BFFs with Oliver Platt who currently c0-stars with the dee-voon Laura Linney on The Big C–bought a large loft in a quintessential cast-iron building from the late 1800s in New York City's SoHo 'hood in July 2005 from famous artist/photographer Cindy Sherman. The peeps at Property Shark (and reports from the time) reveal that Mister Azaria bought the 4,000-ish square foot loft condo in the heart of the maddening tourist-filled SoHo shopping mecca for $4,625,000.
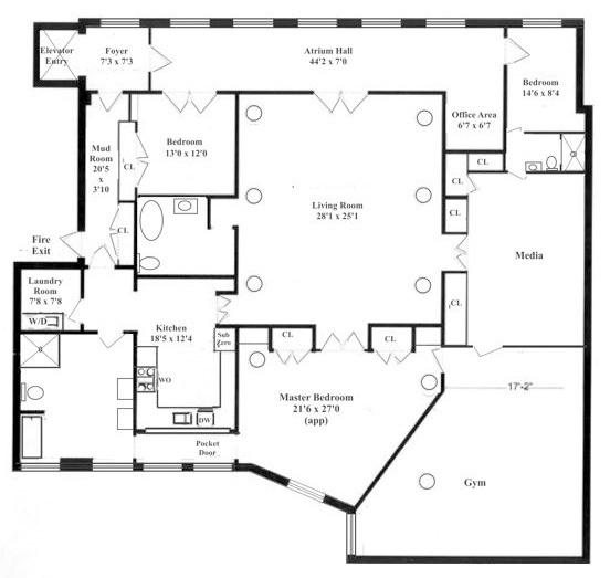
In late July it was reported on Curbed that Mister Azaria had (somewhat reluctantly) put his New York City loft on the rental market with an monthly price tag of $16,000. Listing information for the oddly-configured loft shows it contains 3 bedrooms and 3 bathrooms, a 70-foot long entrance gallery, an almost 700 square foot living room and a windowless media room with exposed brick wall. One entire corner of the loft is given over to a professional quality gym because, apparently, Mister Azaria is mad-serious about the condition of his body.
The eat-in kitchen has an old-timey tin ceiling, black tile floors, urban-country type white Shaker-style cabinetry, butcher block counter tops and high grade stainless steel appliances. A perusal of the floor plan included with marketing materials reveals the loft has a terribly long list of awkward architectural moments–an essentially windowless bedroom, way too much space devoted to a gym–but none perhaps more pearl-clutching worthy that the kitchen windows that look into an otherwise private windowed corridor that connects the master bedroom to the master bathroom. Admittedly we like the un-decorated put your feet on the sofa vibe of the media room and main living space but the floor plan, puppies, has Your Mama needed a nerve pill and a handful of jelly beans.
listing photos: (Pacific Palisades): Sotheby's International Realty
listing photos (Beverly Hills): Prudential
listing photos and floor plan (New York City): Stribling